



























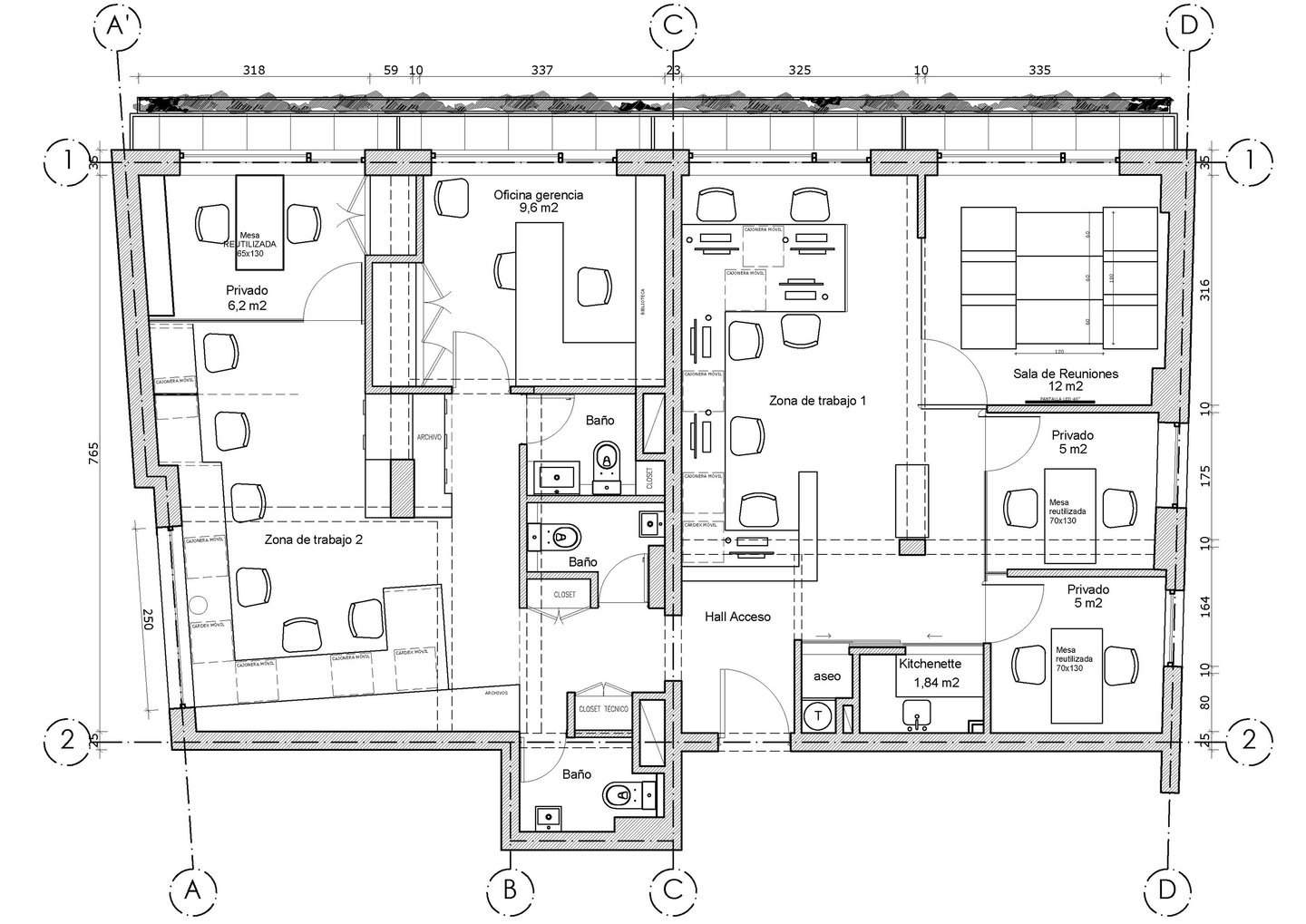
Planta piso terminado
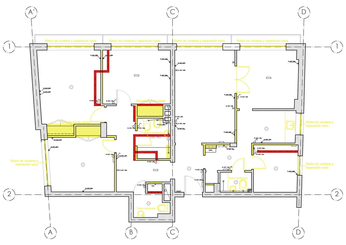
Planta de conciliación (demolición + construcción)


Extracto detalle de muebles

El proyecto consistió en la selección y remodelación de un departamento para ser usado como oficina doble. Para aprovechar la superficie de la mejor forma posible, se demolieron gran parte de las tabiquerías originales para lograr dos espacios de planta libre que sirvieran como espacio principal para cada oficina, con algunos privados acristalados, permitiendo la libre vista hacia el río Mapocho y su arboleda. Los servicios como baños, cocina, recepción y sala de reuniones son compartidos por ambos equipos.
La oficina buscaba lograr una imagen elegante y austera, pero acogedora y cálida. Para esto se contrastaron los colores del mobiliario, luminarias y tabiquerías acristaladas con un piso funcional pero cálido, guardapolvos de madera natural y ventanas en aluwood, por fuera manteniendo el color negro del resto de las ventanas en el edificio, y por dentro construidas completamente en madera natural.
El diseño incluyó mobiliario empotrado con mesones que permiten distribuir libremente los puestos de trabajo, y gran capacidad de almacenamiento. Se recuperaron las molduras originales de cielos, muros y puertas, reemplazando completamente los pisos en mal estado, las ventanas de fierro y las zonas húmedas.
Arquitecto colaborador
Shadi Rabba
