
































Casa original

Arquitecto colaborador
Salomón Barahona
El proyecto consistió en la selección de una propiedad y su posterior rehabilitación y ampliación para ser usada como oficina. Se eligió una vivienda habitacional en mal estado, pero con gran potencial en términos de iluminación, distribución interior, ubicación y visibilidad. Se realizó un estudio para la sociedad inversionista de manera que el proyecto se amoldara a las necesidades del mercado y fuese rentable para su arriendo con un uso lo más libre posible.
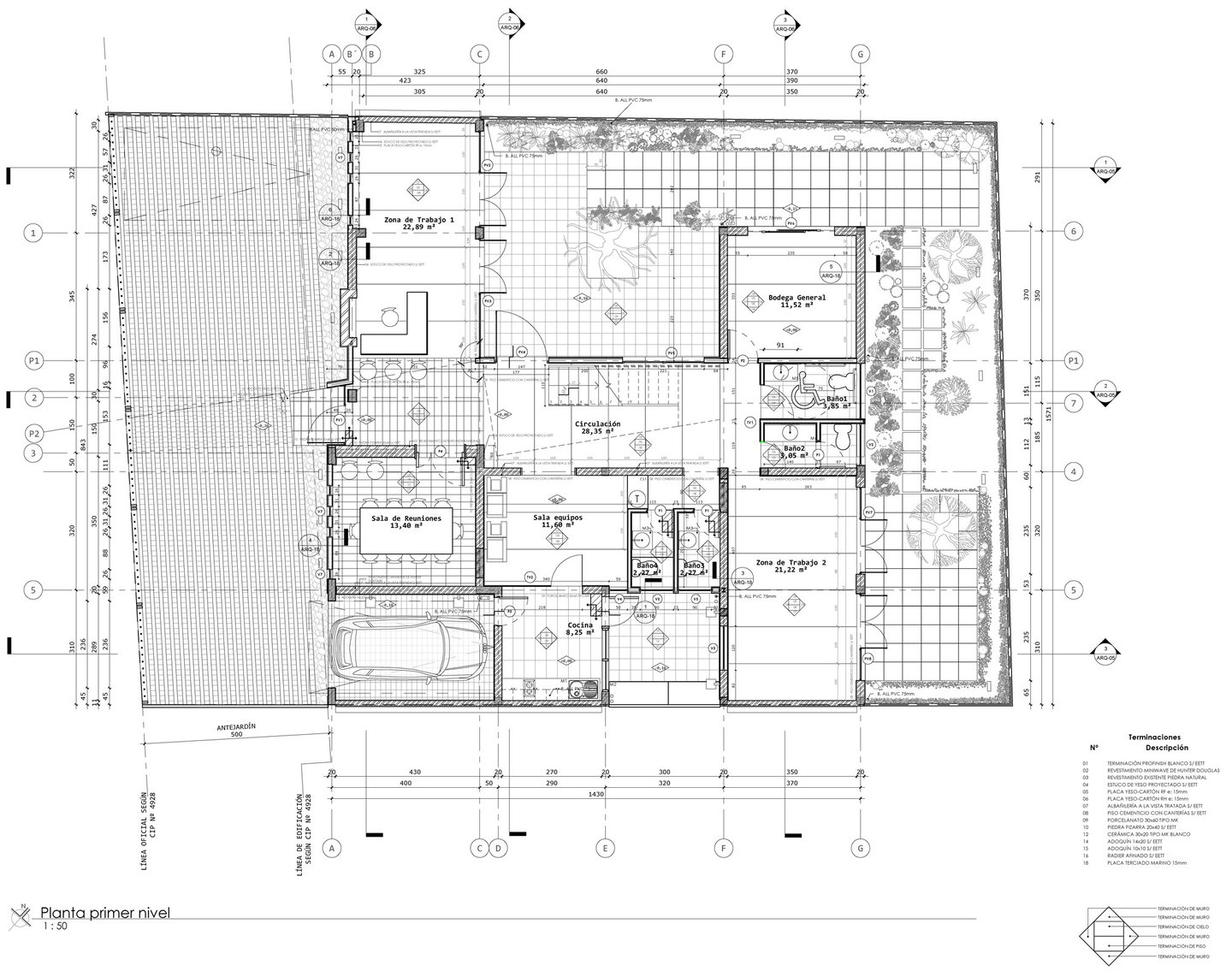
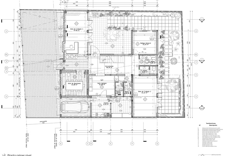
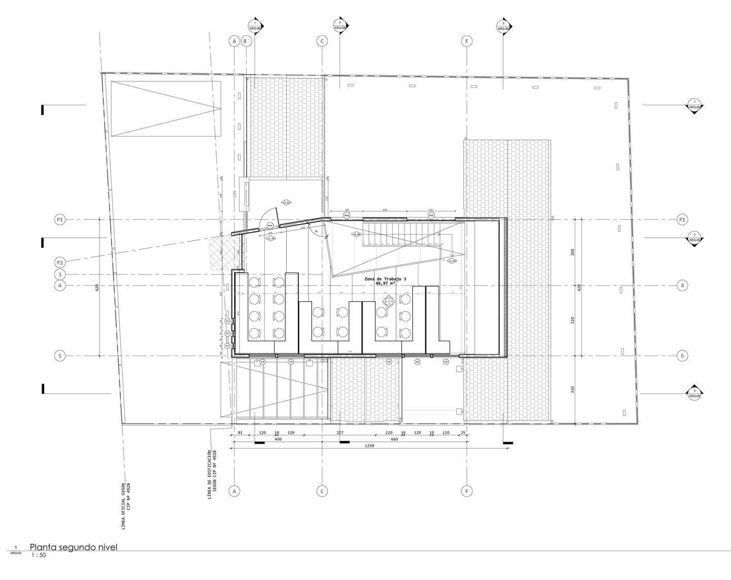
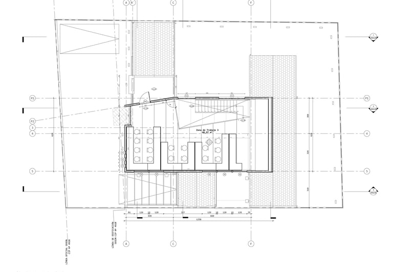
La propuesta programática consiste en la liberación y reorganización de los espacios existentes y la generación de una planta libre en segundo piso. Se concentran los servicios en torno a una galería que comunica espacial y funcionalmente toda la oficina.
En términos formales la nueva construcción en segundo piso reinterpreta el lenguaje existente de la cubierta a dos aguas y se hace presente en el primer piso para imprimar un lenguaje vanguardista sobre la antigua casa habitacional. Se mantuvo toda la estructura existente, las vigas y cerchas de cubierta fueron reparadas y dejadas a la vista, al igual que la chimenea y los elementos originales de piedra.
El resultado es una construcción habilitada como obra nueva, cuya imagen realza características originales y a su vez imprima la contemporaneidad y el diseño en una oficina que resulta cómoda, flexible en su uso y deseable como imagen corporativa.
A 10 años de su ejecución, el proyecto había rentado mejor de lo esperado y mantuvo una vacancia inferior a 1 mes por año.
Inversión
13.590 UF
Tasa de retorno anual sobre la inversión (arriendo 11m/año)
6,47% (esperada)
7,61% (real)
