






























Arquitecto colaborador
Salomón Barahona
Construcción
Alhambra Ingeniería
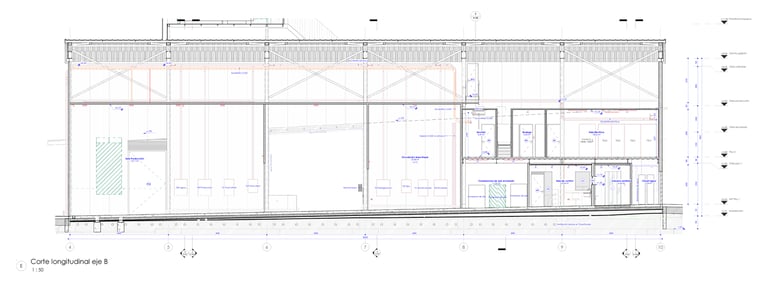
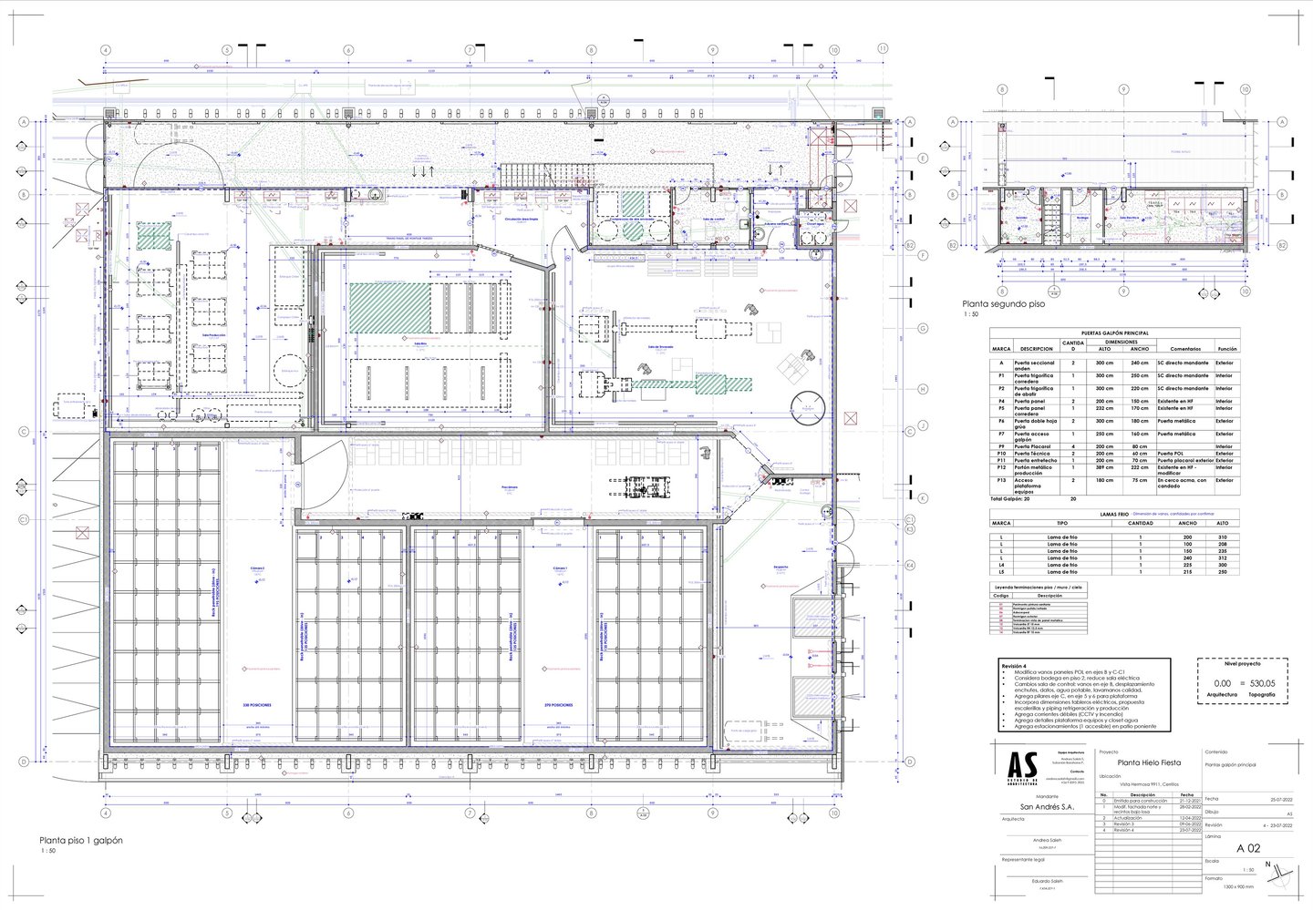
Proyecto industrial con frigorífico, área productiva refrigerada, área de mantenimiento y oficinas administrativas. El proyecto se desarrolló y coordinó completamente en BIM, incluyendo el modelado de todas las especialidades.
La maniobra más significativa en el diseño fue la decisión de inclinar toda el área productiva en un 2%, con lo cual se resolvieron dos desafíos simultáneamente: 1, resolver el drenaje de aguas en pavimentos sin obras adicionales sobre el radier ni cambios de nivel; y 2, adaptarse al nivel de terreno natural reduciendo significativamente los rellenos necesarios.
Dentro del área productiva se diseñaron dos procesos de recuperación de agua, principal insumo de producción. El primero recupera agua del lavado de pisos “limpios” mediante drenajes exclusivos para acumulación en un estanque dedicado al riego de las áreas verdes de la propiedad; el segundo recircula agua y hielo dentro del mismo proceso productivo para recuperar energía de enfriamiento y purificado del agua.
Producto de la postpandemia surgió la necesidad de ajustar el diseño original a un alza de precios muy relevante, lo cual se resolvió principalmente dividiendo la planta en tres edificios separados (producción y almacenamiento, administración, y mantenimiento), aprovechando las áreas de menor exigencia técnica para usar sistemas constructivos mucho más livianos y económicos.
Especialidades
Cálculo estructural
Ingeniería eléctrica
Refrigeración
Ingeniería sanitaria
Ingeniería de procesos
Control electrónico
Pavimentación
Iluminación
